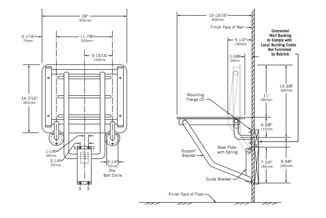
- Seat is constructed of durable, Water Resistanmt, Ivory coloured 8mm thick solid Phenolic
- Frame and Mounting Brackets are type 304 Stainless Steel with self locking mechanism
- The seat is pulls out away from the wall when wanting to use and can be fold up against the wall when not in use.
- Supports up to 227kg when properly instsalled
- Seat 455mm (W) x 400mm (d) in open position
